移至主要內容區
選單按鈕

參山國家風景區管理處行政資訊網

:::
:::

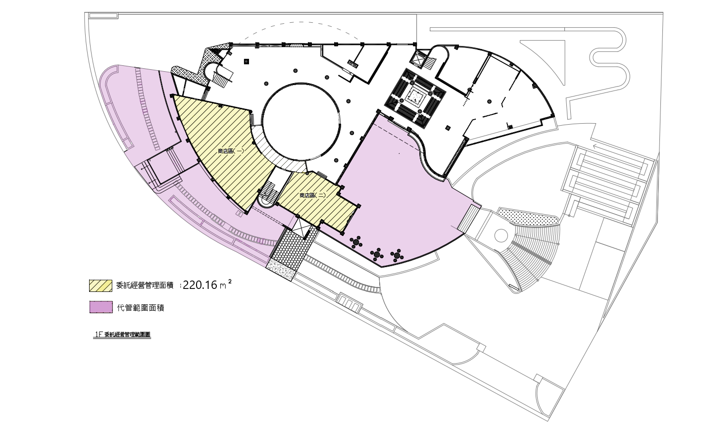
本處辦理「松柏嶺遊客中心部分空間出租案」案,歡迎符合資格者下載標租文件投標

發布單位:參山國家風景區管理處 發布日期:113-11-28 點閱率:556

官網公告標租期間為即日起至113年12月9日下午17時止,凡合於以下招租公告資格者(詳附件-標租公告),於上述期間可於官網免費下載標租文件,或於標租期間至本處秘書室以現金200元購買紙本文件。


截止投標/開標(資格審查)時間及地點:
(1) 截標:113/12/09 17:00
(2) 開標:113/12/10 10:00
(3) 評審會:113/12/11 14:00
(4) 開標地點:本處4樓開標室(若臨時調整開標地點,將另行公告於官網)。(5) 評審會地點:本處3樓會議室(若臨時調整開標地點,將另行公告於官網)。

附件下載
檔案名稱 格式
00招標文件清單
格式:PDF 檔案大小:57 KB 下載次數:175
01公開標租須知
格式:PDF 檔案大小:294 KB 下載次數:300
02契約(稿)
格式:PDF 檔案大小:289 KB 下載次數:237
03標價清單
格式:PDF 檔案大小:63 KB 下載次數:173
04投標廠商聲明書.1130101
格式:PDF 檔案大小:114 KB 下載次數:120
05授權書
格式:PDF 檔案大小:53 KB 下載次數:117
06切結書
格式:PDF 檔案大小:50 KB 下載次數:116
07廠商投標前自行檢核表
格式:PDF 檔案大小:72 KB 下載次數:227
08投標廠商須備文件清單
格式:PDF 檔案大小:62 KB 下載次數:126
09標封
格式:PDF 檔案大小:59 KB 下載次數:240
10評審辦法(參山處)
格式:PDF 檔案大小:104 KB 下載次數:144
11廠商廉政告知書
格式:PDF 檔案大小:83 KB 下載次數:137
12疑義請求釋疑電傳表
格式:DOCX 檔案大小:14 KB 下載次數:118
13松柏嶺遊客中心出租面積及代管範圍
格式:PNG 檔案大小:338 KB 下載次數:143

最後更新日期:113-11-28
返回頁面頂端 回上一頁